Skip To Content

400 Williams Road

Wallingford, CT 06492
  • $550,000
  • STATUS: Active Under Contract
  • ON SITE: 30 Days
  • MLS #: 24133872
Under Contract
UPDATED: 29 min ago
$550,000
  • 3
    BEDS
  • 1.15
    ACRES
  • 2
    BATHS
  • 1
    1/2 BATHS
  • 2,198
    SQFT
  • $250
    $/SQFT
Type:
Single-Family Home
Built:
1977
County:
Area:

School Information

Elementary School:
Middle School:
High School:

Description

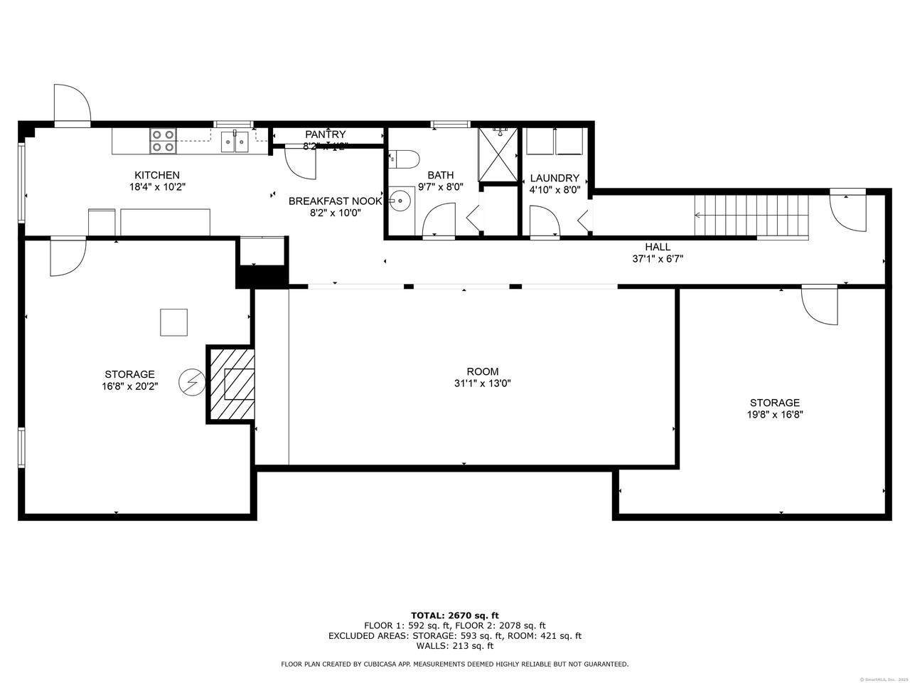
Under contract. Back up offers only! Extraordinary one-level living, extraordinary value! Custom built, 2200 square foot original owner brick ranch features gracious foyer, open floorplan hardwood floors, cherry kitchen with breakfast bay, formal dining room open to living room with granite fireplace, king-sized primary bedroom suite with full bath including tub/shower, den, study. Great In-Law potential! Full basement features recreation room with wood-burning fireplace, custom bar, kitchen area with direct outside access, additional storage room.

Monthly Payment Calculator



The data relating to real estate for sale on this website appears in part through the SMARTMLS Internet Data Exchange program, a voluntary cooperative exchange of property listing data between licensed real estate brokerage firms, and is provided by SMARTMLS through a licensing agreement. Listing information is from various brokers who participate in the SMARTMLS IDX program and not all listings may be visible on the site. The property information being provided on or through the website is for the personal, non-commercial use of consumers and such information may not be used for any purpose other than to identify prospective properties consumers may be interested in purchasing. Some properties which appear for sale on the website may no longer be available because they are for instance, under contract, sold or are no longer being offered for sale. Property information displayed is deemed reliable but is not guaranteed. Copyright 2025 SmartMLS, Inc. Data last updated: 2025-11-16T07:10:00.187.
www.legendsofremax.com/homes/168936687
Print Image

400 Williams Road Wallingford, CT 06492

  • Price: $550,000
  • Status: Active Under Contract
  • On Site: 30 Days
  • Updated: 29 min ago
  • MLS #: 24133872
3
Beds
2
Baths
1
½ Baths
1.15
Acres
2,198
SQFT
$250
$/SQFT
1977
Built
County:
New Haven
Area:
Wallingford
Elementary School:
Rock Hill
Middle School:
Hammarskjold
High School:
Lyman Hall
Property Description
Under contract. Back up offers only! Extraordinary one-level living, extraordinary value! Custom built, 2200 square foot original owner brick ranch features gracious foyer, open floorplan hardwood floors, cherry kitchen with breakfast bay, formal dining room open to living room with granite fireplace, king-sized primary bedroom suite with full bath including tub/shower, den, study. Great In-Law potential! Full basement features recreation room with wood-burning fireplace, custom bar, kitchen area with direct outside access, additional storage room.
Exterior Features

Color Brick Direct Waterfront YN No Driveway Type PavedAsphalt Exterior Features GuttersPatio Exterior Siding Brick Garage And Parking Attached GaragePavedOff Street ParkingDriveway Lot Description Corner LotTreedOpen Lot Nearby Amenities Golf CourseLibraryMedical FacilitiesParkPrivate School(s)Public PoolPublic Rec FacilitiesShopping/Mall Parking Total Spaces 8 Roof Information Shingle Style Ranch Swimming Pool YN No Waterfront Description Not Applicable

Interior Features

Appliances Included Oven/RangeRange HoodRefrigeratorFreezerDishwasherWasherElectric Dryer Attic Description UnfinishedCrawl SpaceAccess Via Hatch Attic YN Yes Basement Description FullHeatedCooledInterior AccessPartially FinishedLiveable SpaceFull With Walk-Out Cooling System Central Air Fireplaces Total 2 Heat Type Hot Air In Law Access Lower LevelSeparate Entry In Law Apartment Possible Interior Features Auto Garage Door OpenerCable - AvailableCable - Pre-wiredOpen Floor PlanSecurity System Laundry Room Info Lower Level Laundry Room Location Lower level washer & dryer Rooms Bedroom (Main Level Hardwood Floor) Den (Main Level Hardwood Floor) Rec/Play Room (Lower Level Dry BarFireplaceHalf Bath) Primary BR Suite (Main Level Bedroom SuiteFull BathTub w/ShowerHardwood FloorTile Floor) Bedroom (Main Level Hardwood Floor) Dining Room (Main Level French DoorsHardwood Floor) Eat-In Kitchen (Main Level Breakfast BarBreakfast NookCorian CountersEating SpacePantry) Office (Main Level Hardwood Floor) Half Bath (Main Level) Living Room (Main Level B Rooms Additional Roughed-In Bath Sq Ft Est Heated Above Grade 2198 Sq Ft Est Heated Below Grade 918 Sq Ft Total 3116 Total Rooms 8

Property Features

Accessibility Features Hard/Low Nap Floors Agent Owner YN No Bank Owned Property No Energy Features Fireplace InsertGeneratorGenerator ReadyThermopane Windows Financing Used CHFA Flood Zone YN No Foundation Type Concrete Fuel Tank Location In Basement Heat Fuel Type Oil Home Owners Assocation No Home Warranty Offered YN No Hot Water Description OilUpright Tank Intermediate School Rock Hill New Construction Type No/Resale Potential Short Sale No Radon Mitigation Air YN No Radon Mitigation Water YN No Sewage System Septic Tax Year July 2025-June 2026 Under Agreement Yn No Water Source Private Well Zoning RU40

Listing information © 2025 Smart MLS
Listing provided courtesy of Margaret Shea of William Raveis Real Estate: (203) 272-0001.


The data relating to real estate for sale on this website appears in part through the SMARTMLS Internet Data Exchange program, a voluntary cooperative exchange of property listing data between licensed real estate brokerage firms, and is provided by SMARTMLS through a licensing agreement. Listing information is from various brokers who participate in the SMARTMLS IDX program and not all listings may be visible on the site. The property information being provided on or through the website is for the personal, non-commercial use of consumers and such information may not be used for any purpose other than to identify prospective properties consumers may be interested in purchasing. Some properties which appear for sale on the website may no longer be available because they are for instance, under contract, sold or are no longer being offered for sale. Property information displayed is deemed reliable but is not guaranteed. Copyright 2025 SmartMLS, Inc. Data last updated: 2025-11-16T07:10:00.187.
 
https://bt-photos.global.ssl.fastly.net/ctmls/1280_boomver_1_24133872-1.jpg https://bt-photos.global.ssl.fastly.net/ctmls/1280_boomver_1_24133872-1.jpg https://bt-photos.global.ssl.fastly.net/ctmls/1280_boomver_1_24133872-1.jpg
Logo
RE/MAX Legends
65 Boston Post Road
Waterford CT, 06385